immobilienlutz.de

                                              für Sie vor Ort !

Startseite

Angebote

Energiepass

Makler?

Widerrufs-belehrung

Kontakt

AGB

Archiv

Objekt: 02 Gründstück mit Wohnhaus
   
Grundstücksgröße ca. 950m²
Kleinhaus ca. 85m² Wohnfläche
  4 Räume, Küche, Bad, Diele, Terrasse
  Gasheizung, Kamin
  bis 2007 Sanierung und Modernisierung
Nebenbauten Holzbohlengartenhaus, Schuppen
Baujahr geschätzt 1930

Reg. Nr.

22501
Erschließung im Gebäude ortsüblich - Wasser, Abwasser (Grube), Strom, Erdgas, Breitband
Strasse unbefestigt
Energieangaben Bedarfsausweis, 115kwh/(m²*a), Erdgas

sonstiges

bis 2007 saniert und modernisiert, Vollwärmeschutz
Anschrift 16356 Werneuchen
Kaufpreisangebot 195.000,00 €
   
weitere Informationen  zum Objekt zurück weiter
   
   
 
 
 
Eingangsbereich in Südausrichtung
mit großer überdachter Terrasse
 
 
 
 
 
   
 
 
 
Strassenansicht, Nordseite
Wohnhaus, Carport
 
 
 
 
 
   
 
 
überdachte Terrasse
Südseite
 
 
 
 
 
 
   
 
 
 
Randlage
links Grundstück
 
 
 
 
 
   
 
 
 
auf dem Grundstück
Blockbohlenhaus und anderes
 
 
 
 
 
   
 
 
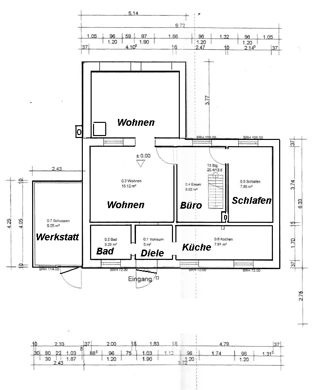
Grundriss Wohnhaus
ohne Terrasse
 
 
 
 
vergrößern
 
   
 
 
Querschnitt Wohnhaus
 
 
 
 
vergrößern
 
 
   
 
 
 
Lageskizze Grundstück